- Wohneinheitenfläche
- Um 104 m²
- Grundstücksfläche
- Um 248 m²
- Baujahr
- Baujahr 1966
- Anzahl der Zimmer
- 5 Räume (3 Schlafzimmer)
Wenn Sie den Wohnraum betreten, fällt die Ruhe auf. Das Tageslicht strömt herein und verleiht dem Raum eine sanfte, offene Atmosphäre. Hier sehen Sie sich bereits sitzen: eine Tasse Kaffee in der Morgen Sonne, ein gemütlicher Abend mit Freunden oder einfach ein ruhiger Sonntag mit einem guten Buch. Die Küche ist mit dem Wohnraum verbunden und bietet genau diese Gemütlichkeit, in der eine Familie oder ein Paar sich vollkommen wohlfühlen kann.
Auf der ersten Etage warten drei geräumige Schlafzimmer – jedes einzelne ein Ort, der Wärme und Privatsphäre bietet. Das Badezimmer ist eine feine Überraschung mit einem Whirlpool, Dusche, WC und Waschtisch: ideal, um den Tag entspannt zu beginnen oder abzuschließen.
Der Dachboden (über eine schmale Treppe erreichbar) bietet zusätzliche Möglichkeiten: ein Hobbyraum, Arbeitsplatz oder Platz zum ordentlichen Aufbewahren von Dingen. Für jeden das Richtige.
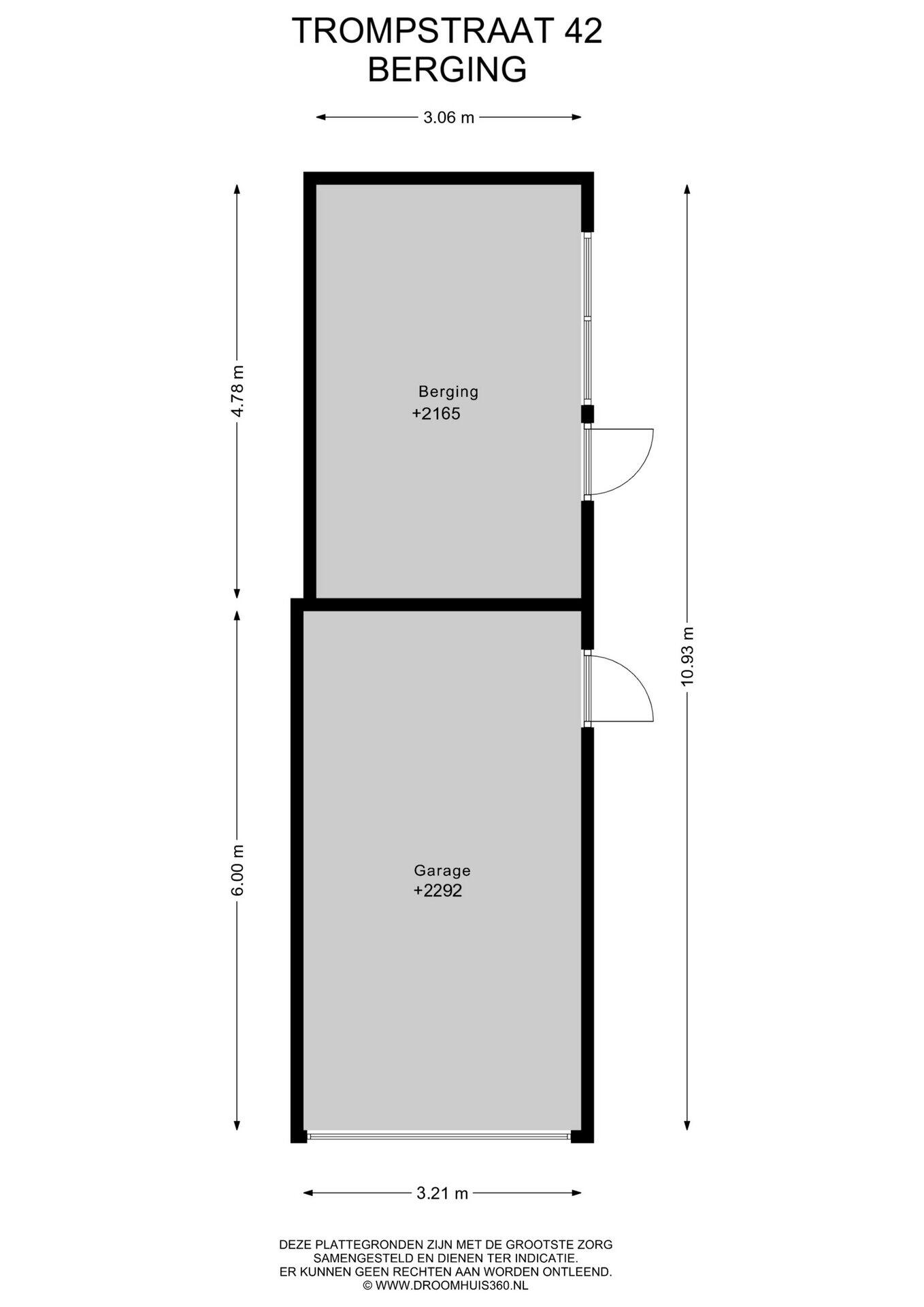
Außen geht das Gefühl von Raum und Freiheit weiter. Der tiefgrüne Hinterhof mit Blick nach hinten ist ein wundervoller Ort für lange Sommerabende, spielende Kinder oder einfach das Genießen des Außenlebens. Die große freistehende Stein Garage und Lager mit Elektrizität machen Hobbys, Lagerung und Fahrradstallung besonders einfach.
Was dieses Haus noch attraktiver macht, sind die nachhaltigen Akzente. Solarmodule, gute Dämmung und eine moderne ATAG-Boiler aus dem Jahr 2021 sorgen für Komfort und geringere Energiekosten. Schönes Gefühl, oder nicht?
Die Wohnung liegt in einem angenehmen und kinderfreundlichen Viertel, in kurzer Entfernung von Supermärkten, Schulen, Sporteinrichtungen und Ausfahrtstraßen. Dank der guten Lage und des vollständigen Wohnprogramms ist dies eine ideale Gelegenheit für Anfänger, junge Familien oder Durchreisende, die nach Raum, Licht und Komfort suchen.
Besonderheiten:
- Eckenwohnung auf feinem Grundstück von 204 m²
- Wohnfläche ca. 104 m² + Attikabereich + Abstellraum von ca. 35 m²
- 3 Schlafzimmer
- Badezimmer mit Badewanne, Dusche, WC und Waschbecken
- Energielabel C (28-10-2035), vorhandene Solarpanels
- Erwähnenswerter ATAG CV-Kessel (2021, Eigentum)
- Einzelstehende Stein-Garage und separate Lagerung mit Elektrizität
- Parken auf privatem Gelände
- Ruhe, grün und zentral gelegen
Trompstraat 42 ist keine Standardwohnung. Es ist ein Ort mit Charakter – bereit für neue Erinnerungen, neue Energie und eine neue Zukunft. Vielleicht gerade mit dir?
Übertrag
- Verhandlungspreis
- 449.000 € k.K.
- Status
- verfügbar
- Hinnehme
- Im Gespräch
Bau
- Gegenstandsart
- Einzelhaus, Eckwohnung
- Bauart
- Existierende Bauwerke
- Baujahr
- 1966
- Dachart
- Dach First mit Schindeln bedeckt
Oberfläche und Inhalt
- Wohneinheitenfläche
- 104 m²
- Grundstücksfläche
- 248 m²
- Inhalt
- 452 m³
- Sonstiger eingebautes Raum
- 18 m²
- Außenbereich
- 35 m²
Einteilung
- Anzahl der Zimmer
- 5 Räume (3 Schlafzimmer)
- Anzahl der Badezimmer
- 1 Badezimmer
- Badezimmerausstattung
- Whirlpool, Toilette, Dusche, Waschbecken
- Anzahl der Wohnetagen
- 3 Wohnetagen
- Maßnahmen
- Sonnenelemente
Energie
- Energietag
- C
- Energietag-Register
- 28-10-2025
- Isolation
- Dachisolierung, Doppelfenster
- Heizung
- Brennkessel
- Warmes Wasser
- Brennkessel
- Kessel
- Atag Combi-Kessel Gas gebraucht seit 2021 (Eigenbedarf)
Außenraum
- Garten
- Hintergarten, Vorgarten
- Abmessungen des Hintergartens
- 59 m² (9,75 Meter tief und 6 Meter breit)
- Lage des Gartens
- Lage im Süden und über eine Seitentür erreichbar
Bergspace
- Schleifwerkstatt / Lager
- Einzeln stehendes Steinhaus
- Maßnahmen
- Mit Elektrik ausgestattet
Garage
- Garagenart
- Einzeln stehendes Steinhaus
- Kapazität
- 1 Auto
- Maßnahmen
- Elektra, elektrische Tür
Parkplatz
- Parkplatzart
- Offen Parken, auf eigenen Grundstücken
Energieverbrauch ein Veghel
Energietag der Wohnung
Energielabel C
Energietagmenteil: 28-10-2025
Jahres-Stromverbrauch
(Durchschnitt Winkelhaus in Veghel)
Gaskonsum pro Jahr
(Durchschnitt Winkelhaus in Veghel)
* Zahlen stammen vom CBS und sollen als Indikatoren dienen und können für diese Wohnung unterschiedlich sein
Hypothekenbelastungen
Eigene Einlage:
Ersparnisse / Überwert
Zins:
Niedrigste 10-Jahres-Zinssatz
Niedrigste 10-Jahres-Zinssatz
2,78% - Centraal Beheer Groen... - NHG
3,04% - Centraal Beheer Groen... - 80%
Niedrigste 20-jährige Zinssatz
3,29% - Centraal Beheer Groen... - NHG
3,52% - Centraal Beheer Groen... - 80%
Niedrigste 30-jährige Zinssatz
3,41% - Centraal Beheer Groen... - NHG
3,7% - Argenta Groen Hypotheek... - 80%
Hypothek:
Bruttomonatslasten: € 0 p/m
Nettomonatskosten: € 0 p/m
Wie berechnen wir dies?
Der Zinssatz basiert auf dem niedrigsten 10-jährigen Festzins für einen einzelnen Hypothekenteil. Der angegebene Zinssatz (3.04% zonder NHG) wurde am 11-03-2026 überprüft. Diese Berechnung basiert auf einer Annuitätenhypothek, die vollständig zurückgezahlt wird, wobei die monatlichen Zahlungen während der gesamten Laufzeit gleich bleiben. Der tatsächliche Zinssatz und die monatlichen Nettokosten können je nach Ihrer persönlichen Situation und dem Hypothekengeber variieren. Wenden Sie sich für eine genaue Berechnung und Beratung an einen Finanzberater. Aus dieser Berechnung können keine Rechte abgeleitet werden; sie dient lediglich als Orientierung.
Dokumentation
Katasterkarte
Lebensumgebung
Planansichten PDF
Wertbescheinigung
Krankenkassenbeleg
Broschüre
Besuchen Sie unsere Website
Anmeldung move.nl
Besichtigung
Boden verlegen
Wertschätzung
Suchanfrage
Alles herunterladen
Sonnengrenzen betrachten
Bewohner von Veghel
Zahlen für Postleitzahl-Region 5463
- Gesamtbevölkerungszahl
- 7540 Bewohner
- Männer
- 51%
- Frauen
- 49%
Bewohner von Veghel
Zahlen für Postleitzahl-Region 5463
- bis 15 Jahre
- 16%
- 15 bis 25 Jahre
- 12%
- 25 bis 35 Jahre
- 25%
- 45 bis 65 Jahre
- 27%
- 65 und älter
- 19%
Haushalte von Veghel
Zahlen für Postleitzahl-Region 5463
- Einpersonig ohne Kinder
- 31%
- Erwachsene ohne Kinder
- 30%
- Haushalte ohne Kinder
- 61%
Haushalte von Veghel
Zahlen für Postleitzahl-Region 5463
- Haushalte mit einem Kind
- 7%
- Haushalte mit mehreren Kindern
- 32%
- Haushalte mit Kindern
- 39%
Wohnungen in Veghel
Zahlen für Postleitzahl-Region 5463
- Wohnungen vor 1945
- 2%
- Wohnungen zwischen 1945 und 1965
- 9%
- Wohnungen zwischen 1965 und 1975
- 62%
- Wohnungen zwischen 1975 und 1985
- 2%
- Wohnungen zwischen 1985 und 1995
- 10%
Wohnungen in Veghel
Zahlen für Postleitzahl-Region 5463
- Wohnungen zwischen 1995 und 2005
- 4%
- Wohnungen zwischen 2005 und 2015
- 1%
- Wohnungen nach 2015
- 8%
- Mietwohnungen
- 40%
- Eigentumswohnungen
- 60%
Sonstige Einzahlungen Veghel
Zahlen für Postleitzahl-Region 5463
- Durchschnittliche WOZ-Wert
- € 229.000,-
- Personen unter 65 Jahren mit Hinterbliebenengeld
- 9%
Sonstige Einzahlungen Veghel
Zahlen für Postleitzahl-Region 5463
- Adressen pro Quadratkilometer
- 1233
- Urbanität (Skala von 1 bis 5)
- 60%
Immobilienagentur Van de Laar
Schon fast sechs Jahrzehnte ist Makelaardij van de Laar ein führender Akteur im Immobilienmarkt von Sint-Oedenrode und Umgebung. Im Laufe der Jahre haben wir eine beeindruckende Anzahl an Häusern erfolgreich vermittelt, wodurch zahlreiche Kunden ihre Traumwohnung gefunden haben. Dank unserer Erfahrung und Expertise sind wir spezialisiert auf den erfolgreichen Vermittlung von Käufern und Verkäufern.
Über die Zeit hinweg haben wir ein breites und effektives Netzwerk entwickelt. Dies ermöglicht es uns, direkt auf die Bedürfnisse von Menschen einzugehen, die nach einer Wohnung suchen oder ihr Haus verkaufen möchten. In der aktuellen dynamischen Immobilienmarkt, in dem Häuser schnell zwischen Besitzern wechseln, können wir so schnell wie möglich den idealen Passungsgrad finden. Dies ist definitiv zu deinem Vorteil.
Als Mitglied der VBO, der einflussreichen Branchenverband für professionelle und zuverlässige Immobilienmakler und Sachverständiger, garantiert Immobilienmarkt Laar Qualität und Zuverlässigkeit. Dieser Verband kämpft nicht nur für die Interessen der Makler, sondern auch für die deiner als Konsument, um so das Beste aus dem Immobiliensektor herauszuholen. Und davon profitierst du!
Neueste Bewertungen
-
Hendrik van Hamontstraat 52
Via vrienden geattendeerd op makelaardij van de Laar. Zeer professionele makelaar met kennis van zaken. De planning was strak en duidelijk,...
-
Oude Dijk 40
Heeft een uitmuntende marktkennis van huizen uit de directe omgeving waardoor onze prijsbepaling strategisch kon worden neergezet. Binnen tw...
-
Maya van Maarschalkerweerd
(Ik plaats deze recensie namens mijn vader Hans) Een huis aangekocht via van de Laar. Wat heel erg opviel was de persoonlijke benadering e...